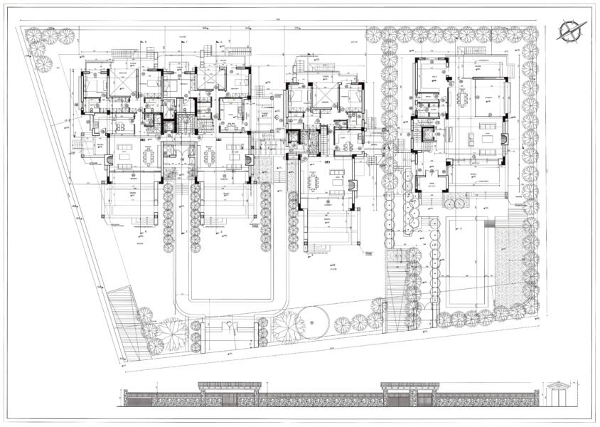
This project is a collaborative effort with the architect K. Christopoulo and involves the architectural planning and permitting of a four-story multifamily residential building with two basements.
The complex is situated in Kifissia, one of the most expensive areas in the northern suburbs of Athens. As one of the oldest upscale neighborhoods in Athens, Kifissia features beautifully restored mansions with large gardens and stunning architectural details. The goal for this multifamily building was to provide each occupant with the experience of living in a single-family home. The main concept aimed to create apartments that offer the benefits of a private villa, complete with gardens, terraces, and privacy. In this context, the building’s volume needed to be divided into multiple sections to blend with the area’s morphology. Storage and parking are provided in the basement.
Three primary volumes were designed. Two of these volumes share a common staircase, while the third has a separate entrance and an independent staircase. Each apartment occupies an entire floor in each of the three volumes. The ground floor apartments feature private gardens and can be connected to the basement via an interior staircase.
The apartments on the third floor are linked to the fourth floor and include terraces. Almost all of the apartments offer beautiful views to the south of Mount Parnitha and to the east of Mount Penteli.






